Hitachi

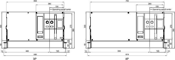
Front view

Front view

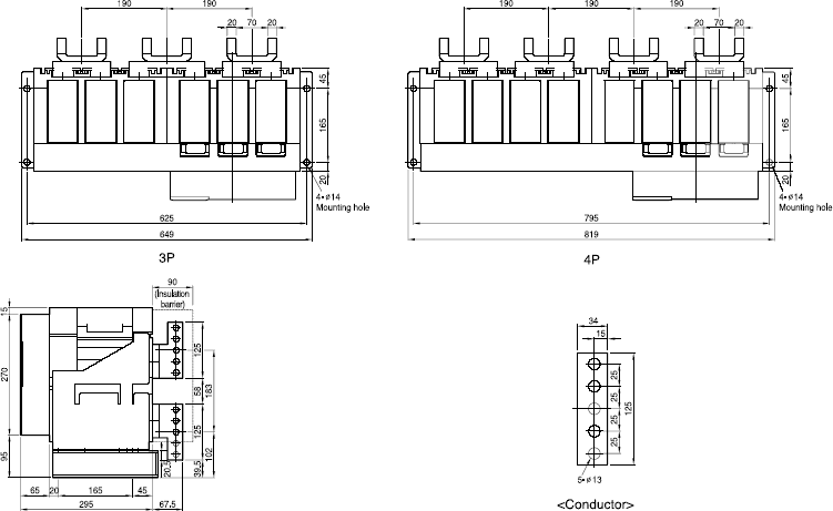
Vertical type

Vertical type

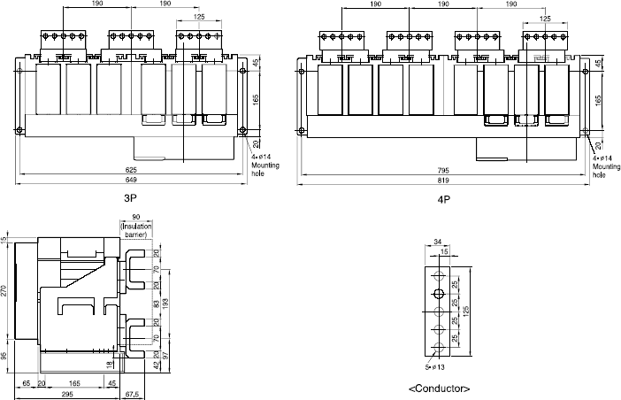
Horizontal type

Horizontal type

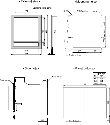
Door Frame: DF (AKH-G, AKS-F)

Door Frame: DF (AKH-G, AKS-F)

  • Note)The dimensions are for drawout type.